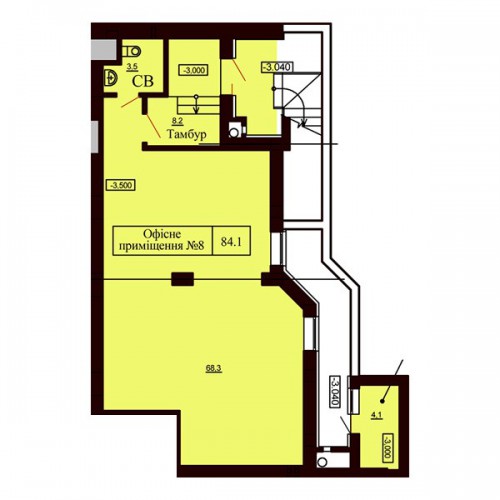
НЕЖИТЛОВА КВАРТИРА 84.10 М/КВ
кімнат
Нет балкона
ПЛОЩІ:
S загальна (м2):
84.10
S житлова (м2):
0.00
S кухня (м2):
0.00
S санузел (м2):
Суміжний
Виникли питання?
Зв'яжіться з нашими менеджерами за телефонами
Iнші Нежилые
Запишіться на перегляд!
Щоб записатися на перегляд, заповніть просту форму і наш менеджер зв'яжется з вами






