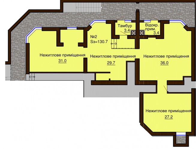
НЕЖИТЛОВА КВАРТИРА 130.70 М/КВ
Iнші новини
НЕЖИТЛОВА КВАРТИРА 60.00 М/КВ
Детальніше
23.10.2019
НЕЖИТЛОВА КВАРТИРА 56.00 М/КВ
Детальніше
23.10.2019
НЕЖИТЛОВА КВАРТИРА 33.60 М/КВ
Детальніше
23.10.2019
Запишіться на перегляд!
Щоб записатися на перегляд, заповніть просту форму і наш менеджер зв'яжется з вами




