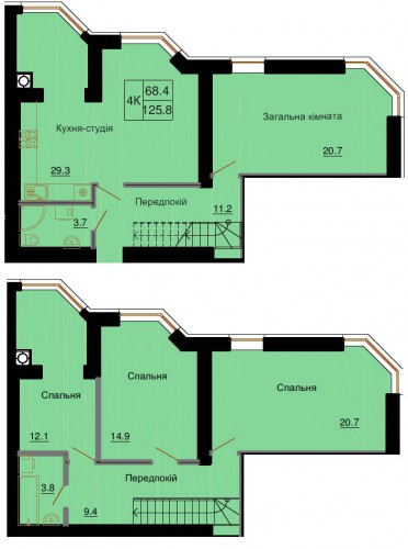
ДВОРІВНЕВА КВАРТИРА 125.80 М/КВ
Iнші новини
ДВОРІВНЕВА КВАРТИРА 108.70 М/КВ
Детальніше
23.10.2019
ДВОРІВНЕВА КВАРТИРА 108.70 М/КВ
Детальніше
23.10.2019
ДВОРІВНЕВА КВАРТИРА 98.00 М/КВ
Детальніше
23.10.2019
Запишіться на перегляд!
Щоб записатися на перегляд, заповніть просту форму і наш менеджер зв'яжется з вами




